Moderna 98

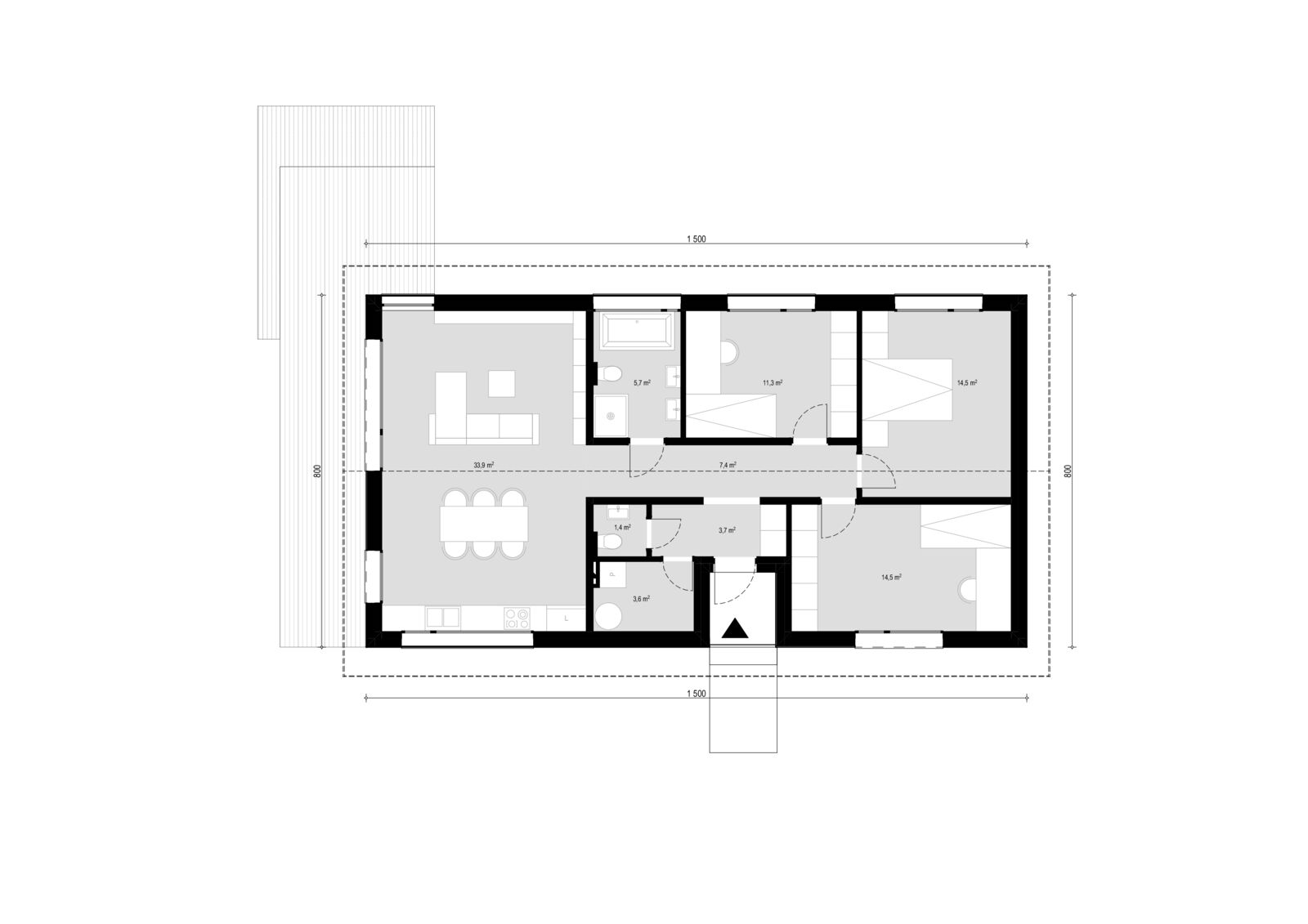
Moderna 98 🏠 to kompaktowy, niezwykle funkcjonalny dom dla osób ceniących wygodę i przestrzeń. Projekt obejmuje 3 sypialnie, salon z aneksem kuchennym, 2 łazienki oraz praktyczną spiżarnię. Prosta bryła z dachem dwuspadowym to ponadczasowy wygląd i optymalne koszty budowy. Idealny metraż bez zbędnych metrów 🏠✨

Cena: 565 400 netto PLN
Metraż: 98 m²
ilość pokoi: 3P + AK
ilość łazienek: 2

POBIERZ OFERTĘ W PDF




Cookies

Korzystając z tej witryny, automatycznie akceptujesz używanie przez nas plików cookie. Czytaj więcej.

AKCEPTUJĘ